Kontor och lager i Stenkullen
Välkommen till Stakebergsvägen 3 i Stenkullen. Här finns möjlighet att hyra en kombinerad kontors- och lagerlokal om totalt ca 380 kvm.
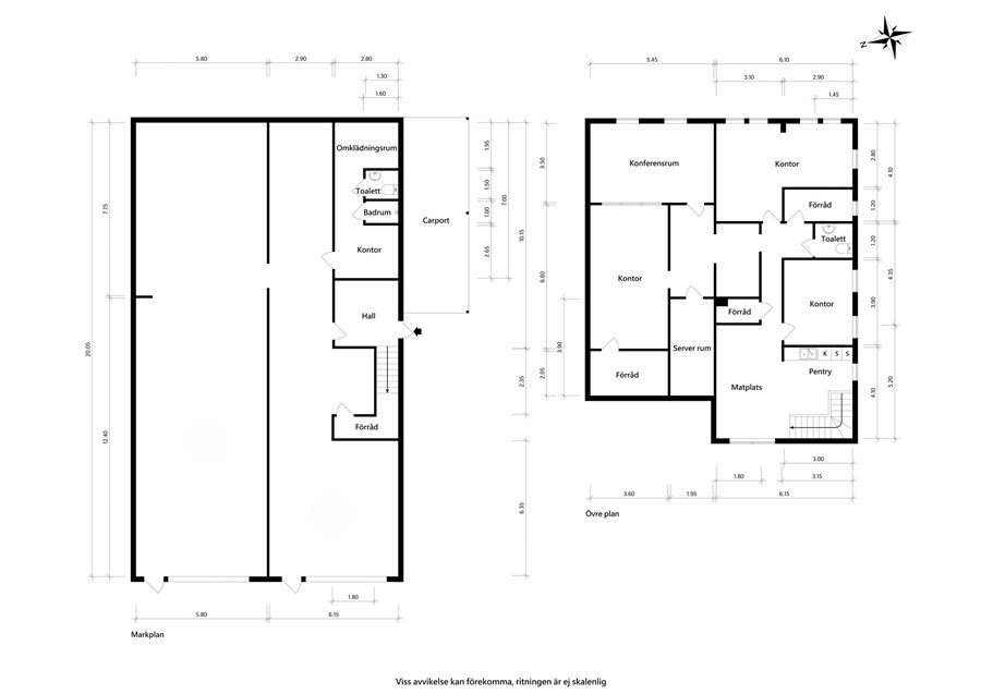
Lokalen är belägen på husets gavel och fördelad över två plan.
På entréplanet finns lager-/produktionsutrymmen, om ca 240 kvm, med dubbla portar som mäter 4 * 4 meter. Som högst är lagerutrymmet 7 meter. Golvbrunn finns men inte oljeavskiljare.
På övre plan finns kontor och personalutrymmen om ca 140 kvm.
Parkeringsplatser finns att tillgå vid husets gavel.
Kort fakta
- Adress:
- Stakebergsvägen 3, Stenkullen
- Typ:
- Kontor, industri och lager
- Totalarea:
- 380 Kvm




Ritning















Rådgivning som tar fastighetsaffärer från bra till bättre
MIKE Kommersiella Fastigheter erbjuder sina kunder kostnadsfri rådgivning inom fastighetstransaktioner och lokalförmedling.
Senaste nytt

MIKE Kommersiella Fastigheter har haft förtroendet att agera transaktionsrådgivare vid avyttring av en bostadsfastighet på Hisingen i Göteborgs kommun. Vi på MIKE vill önska köparen lycka till och tacka säljaren för förtroendet i transaktionen...
Läs mer
MIKE Kommersiella Fastigheter har haft förtroendet att agera transaktionsrådgivare vid avyttring av en industrifastighet på ca 1.335 kvm belägen i Partille kommun. Vi på MIKE vill önska köparen lycka till och tacka säljaren Obadja AB för förtr...
Läs mer
MIKE Kommersiella Fastigheter har haft förtroendet att agera transaktionsrådgivare vid avyttring av en fantastisk innerstadsfastighet om ca 1450 kvm belägen på Kungsportsavenyen i Göteborg. Vi på MIKE vill tacka säljaren för förtroendet i tran...
Läs mer