Ljus och välplanerad butikslokal med bra exponeringsläge!
Nu finns möjligheten att etablera er verksamhet i denna moderna butikslokal, färdigställd 2017.
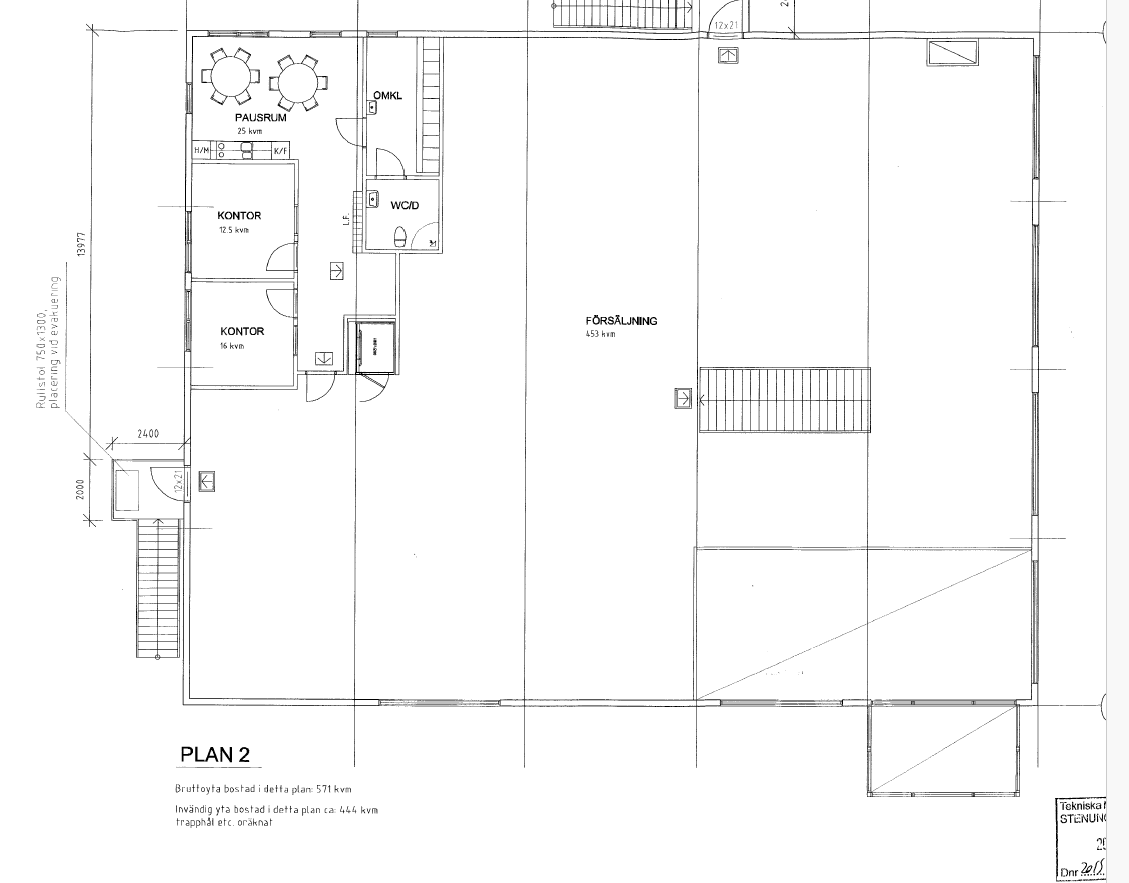
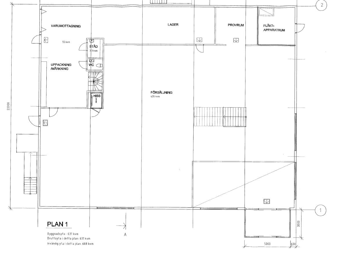
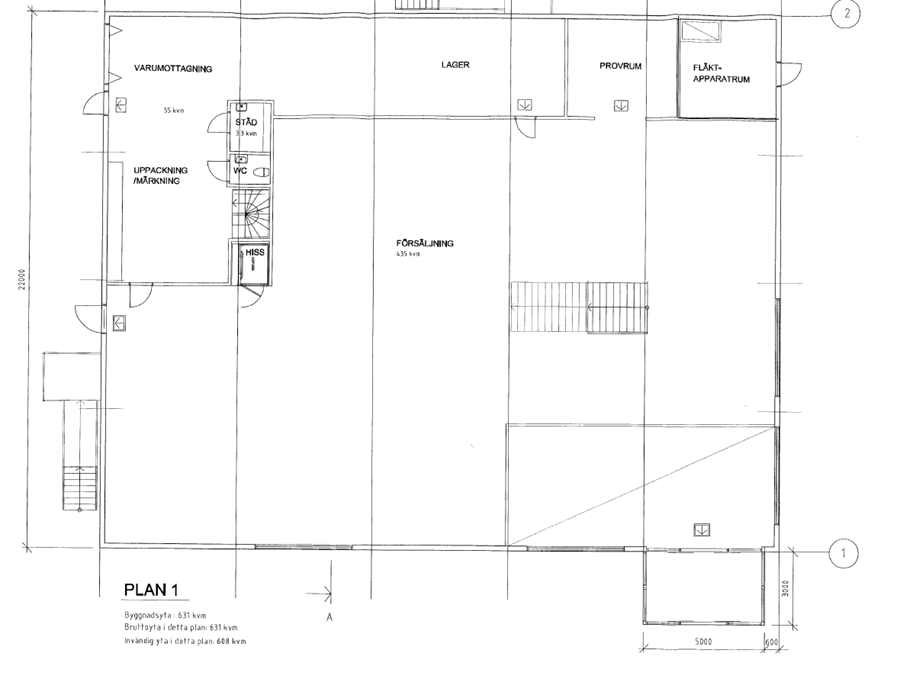
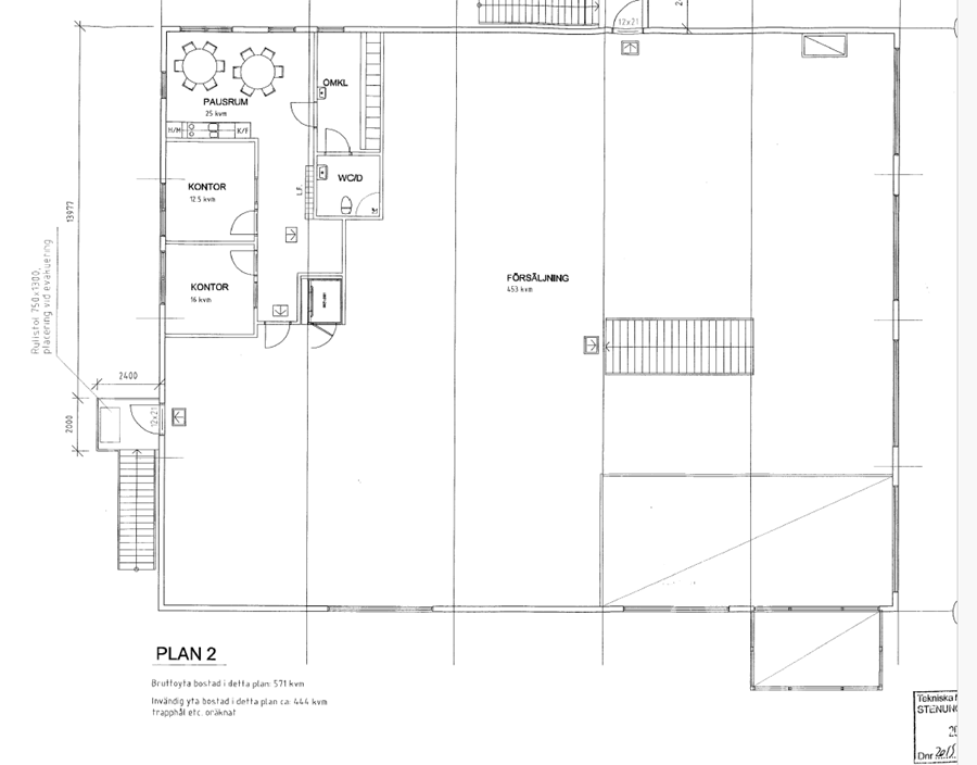
Lokalen, som är fördelad över två våningsplan, håller ett genomgående gott skick och erbjuder en trivsam och representativ miljö för din verksamhet. Entréplanet erbjuder försäljningsyta, varumottagning samt lagerytor. Övre planet inrymmer försäljningsyta, personalutrymmen samt kontor.
Med Willys som granne, i centrala Stora Höga, har du ett mycket bra skyltläge och goda parkeringsmöjligheter i direkt anslutning - faktorer som skapar både synlighet och tillgänglighet för kunder och besökare.
Lokalen kan anpassas efter behov, vilket ger goda förutsättningar att skapa en lösning som passar just din verksamhet.
Kontakta oss på MIKE för mer info!.
Kort fakta
- Adress:
- Selins Väg 2, Stora Höga
- Typ:
- Kontor och butik
- Totalarea:
- 1 070 Kvm
- Byggår:
- 2017
Övre plan
Övre plan
Övre plan
Övre plan
Övre plan
Personalrum på övre plan
Personalrum på övre plan
Kontor på övre plan
Entréplan
Entréplan
Entréplan
Entréplan
Ritning entréplan
Ritning övre plan
Rådgivning som tar fastighetsaffärer från bra till bättre
MIKE Kommersiella Fastigheter erbjuder sina kunder kostnadsfri rådgivning inom fastighetstransaktioner och lokalförmedling.
Senaste nytt
MIKE Kommersiella Fastigheter har agerat uthyrningsrådgivare gällande en kontors- och lagerlokal till Oneco i Sisjöns Handelsområde. Fastighetsägare är Vätterleden Vfast. ”Vi på Vätterleden Vfast tackar MIKE för en proffsig och välskött...
Läs mer
MIKE Kommersiella Fastigheter har agerat rådgivare vid två separata off market-affärer avseende lättindustrifastigheter i Rollsbo Industriområde, Kungälv. Vi vill rikta ett stort tack till samtliga involverade för ett professionellt samarbete ...
Läs mer
MIKE Kommersiella Fastigheter har agerat rådgivare i en affär omfattande 11 friköpta kombilokaler i Arendal, i direkt anslutning till Göteborgs Hamn. 2023 agerade vi rådgivare åt den dåvarande ägaren vid försäljningen av projektfastigheten. Dä...
Läs mer