Etablera ditt företag i nyproducerad lokal mitt i Särö centrum! Från 80 - 356 kvm. Välkommen!
Nyproducerad kontors- och verksamhetslokal i hjärtat av Särö – flexibla ytor & stora möjligheter!
Nu har du chansen att etablera ditt företag i en helt nyproducerad kontors- och verksamhetslokal mitt i Särö centrum – med närhet till service, kommunikationer och vacker natur. I närområdet finns all service du behöver på gångavstånd för en bekväm vardag. Särö centrum erbjuder ett bredd utbud av service med bland annat flera restauranger, Hemköp med fiskbutik, modernt Nordic Wellness gym, vårdcentral, tandläkare, flera salonger för hår- och kroppsvård, café och bageri, blomsterbutik och butik för smådjur.”
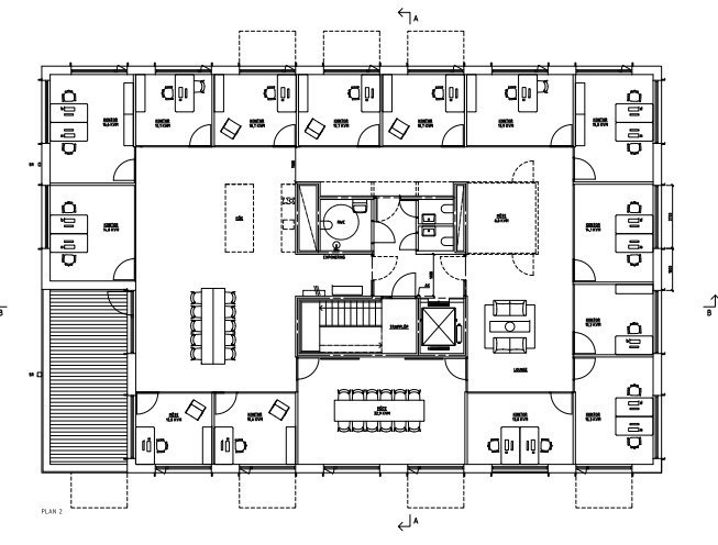
Kontoret ligger på våning 2 och omfattar totalt 356 kvm – med möjlighet att dela upp ytan i mindre enheter beroende på behov från ca 80 kvm och uppåt. Lokalen lämpar sig lika bra för ett växande företag som för flera mindre aktörer som vill dela på moderna och ljusa kontorsytor. Lokalen lämpar sig även väl för mindre verksamheter inom t.ex. vård och hälsa.
Eftersom projektet är i ett tidigt skede finns det goda möjligheter att påverka planlösning, materialval och anpassningar efter just er verksamhets behov. Här finns chansen att skapa en helt skräddarsydd arbetsmiljö från grunden!
Kort om lokalen:
Nyproduktion – inflyttning efter överenskommelse
356 kvm ( kan delas upp i mindre kontor eller lokaler för verksamheter )
Belägen på våning 2
Moderna ytor med god tillgänglighet
Möjlighet att påverka utformning i tidigt skede
Attraktivt läge i Särö centrum
Den här lokalen passar perfekt för företag som söker en modern, flexibel och representativ arbetsplats med närhet till både Göteborg och Kungsbacka – samtidigt som man får njuta av det lugnare tempot i vackra Särö.
Välkommen att höra av dig för mer information eller visning!.
Kort fakta
- Adress:
- Särö Centrumväg 32, Särö
- Typ:
- Kontor och övrigt
- Totalarea:
- 356 Kvm
- Lokal, minsta valbara area:
- 80 Kvm
- Lokal, största valbara area:
- 356 Kvm





Visionsbild






Planritning


Rådgivning som tar fastighetsaffärer från bra till bättre
MIKE Kommersiella Fastigheter erbjuder sina kunder kostnadsfri rådgivning inom fastighetstransaktioner och lokalförmedling.
Senaste nytt

MIKE Kommersiella Fastigheter har haft förtroendet att agera transaktionsrådgivare vid avyttring av en bostadsfastighet på Hisingen i Göteborgs kommun. Vi på MIKE vill önska köparen lycka till och tacka säljaren för förtroendet i transaktionen...
Läs mer
MIKE Kommersiella Fastigheter har haft förtroendet att agera transaktionsrådgivare vid avyttring av en industrifastighet på ca 1.335 kvm belägen i Partille kommun. Vi på MIKE vill önska köparen lycka till och tacka säljaren Obadja AB för förtr...
Läs mer
MIKE Kommersiella Fastigheter har haft förtroendet att agera transaktionsrådgivare vid avyttring av en fantastisk innerstadsfastighet om ca 1450 kvm belägen på Kungsportsavenyen i Göteborg. Vi på MIKE vill tacka säljaren för förtroendet i tran...
Läs mer