Hyr "egen" byggnad i Gamlestaden!
Nu finns möjlighet att hyra hela, eller del av, byggnaden på Malmsjögatan 14. Här får ni tillgång till kontor och lager/produktion över tre plan. Egen innergård med parkeringar och lastkaj.
Idag används byggnadens tre våningsplan, där varje plan är ca 400 kvm, enligt följande:
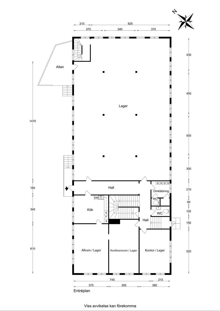
Entréplan: Lager- och produktionsytor samt ett antal mindre rum som även kan användas som kontor/personalutrymmen. Lagerdelen nås via lastkaj.
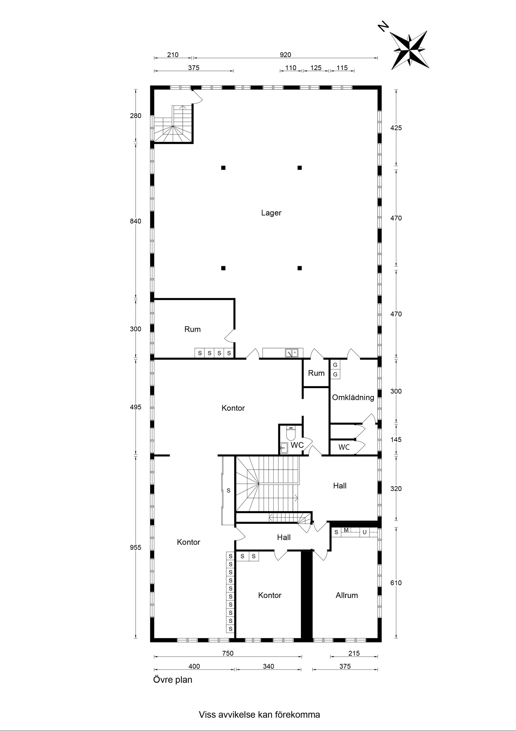
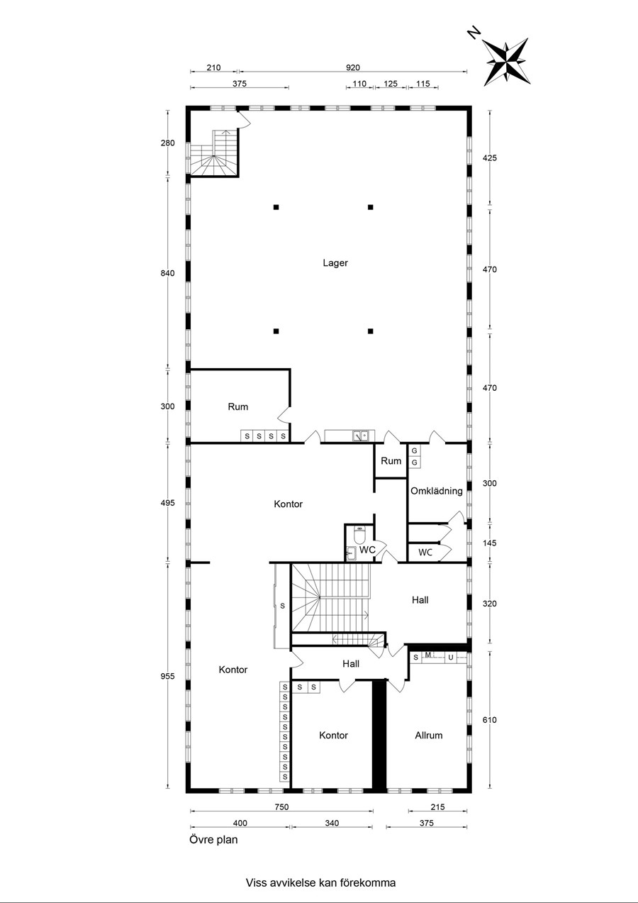
Övre plan: Lager- och produktionsytor samt fina kontorsytor och personalutrymmen.
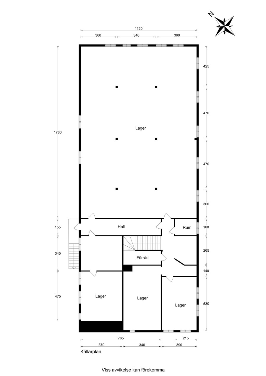
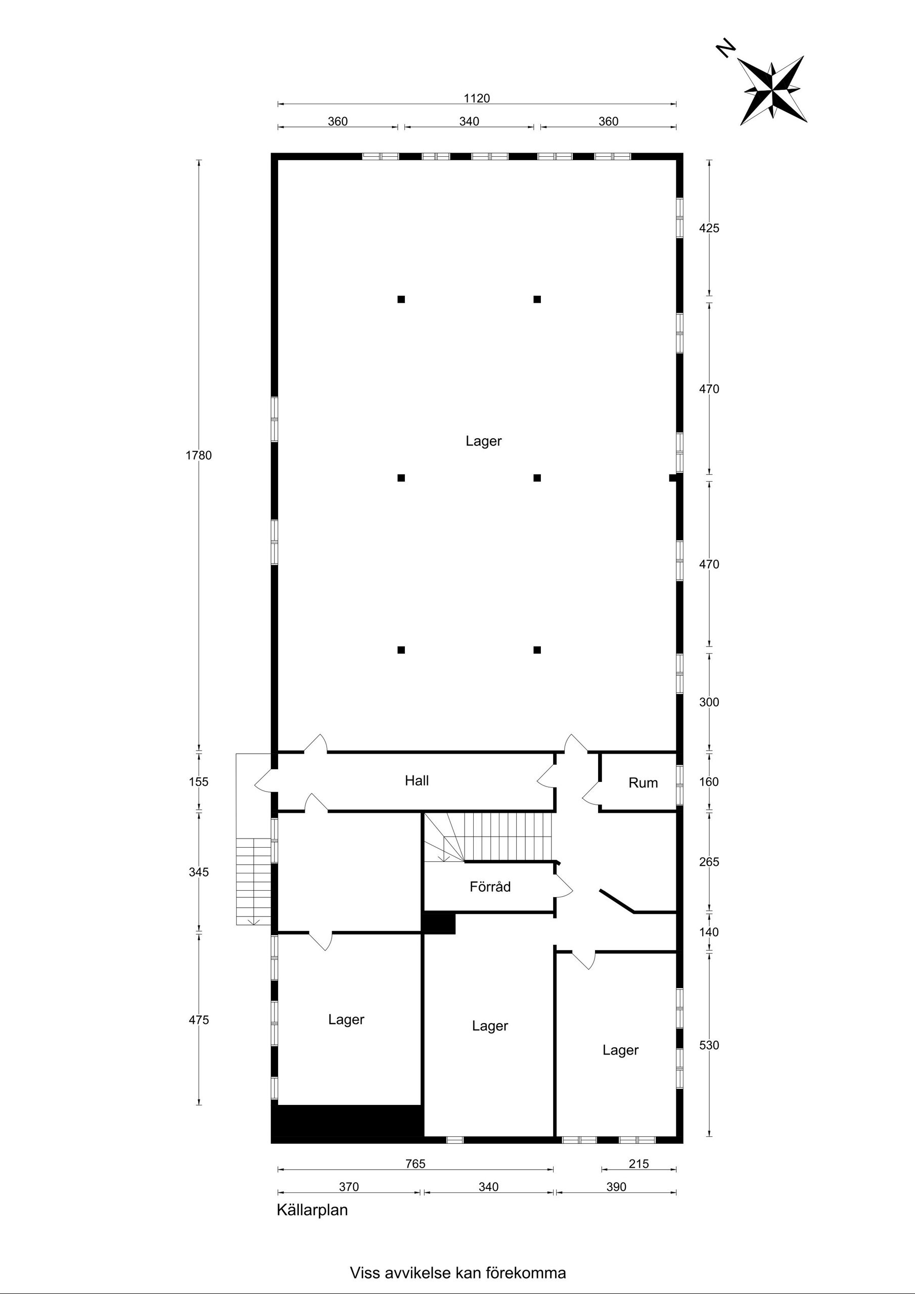
Källarplan: Lageryta.
Kontakta oss på MIKE för mer info!.
Kort fakta
- Adress:
- Malmsjögatan 14, Göteborg
- Typ:
- Kontor och lager
- Totalarea:
- 1 200 Kvm
Övre plan
Övre plan
Övre plan
Övre plan
Övre plan
Övre plan
Övre plan
Övre plan
Övre plan
Övre plan
Övre plan
Övre plan
Entréplan
Entréplan
Entréplan
Entréplan
Entréplan
Lager i källarplanet
Lager i källarplanet
Lager i källarplanet
Ritning källarplan
Ritning entréplan
Ritning övre plan
Rådgivning som tar fastighetsaffärer från bra till bättre
MIKE Kommersiella Fastigheter erbjuder sina kunder kostnadsfri rådgivning inom fastighetstransaktioner och lokalförmedling.
Senaste nytt
MIKE Kommersiella Fastigheter har agerat uthyrningsrådgivare gällande en kontors- och lagerlokal till Oneco i Sisjöns Handelsområde. Fastighetsägare är Vätterleden Vfast. ”Vi på Vätterleden Vfast tackar MIKE för en proffsig och välskött...
Läs mer
MIKE Kommersiella Fastigheter har agerat rådgivare vid två separata off market-affärer avseende lättindustrifastigheter i Rollsbo Industriområde, Kungälv. Vi vill rikta ett stort tack till samtliga involverade för ett professionellt samarbete ...
Läs mer
MIKE Kommersiella Fastigheter har agerat rådgivare i en affär omfattande 11 friköpta kombilokaler i Arendal, i direkt anslutning till Göteborgs Hamn. 2023 agerade vi rådgivare åt den dåvarande ägaren vid försäljningen av projektfastigheten. Dä...
Läs mer