Flexibel lager / industrilokal med kontor, lager och uppställningsyta i Varla/Hede industriområde
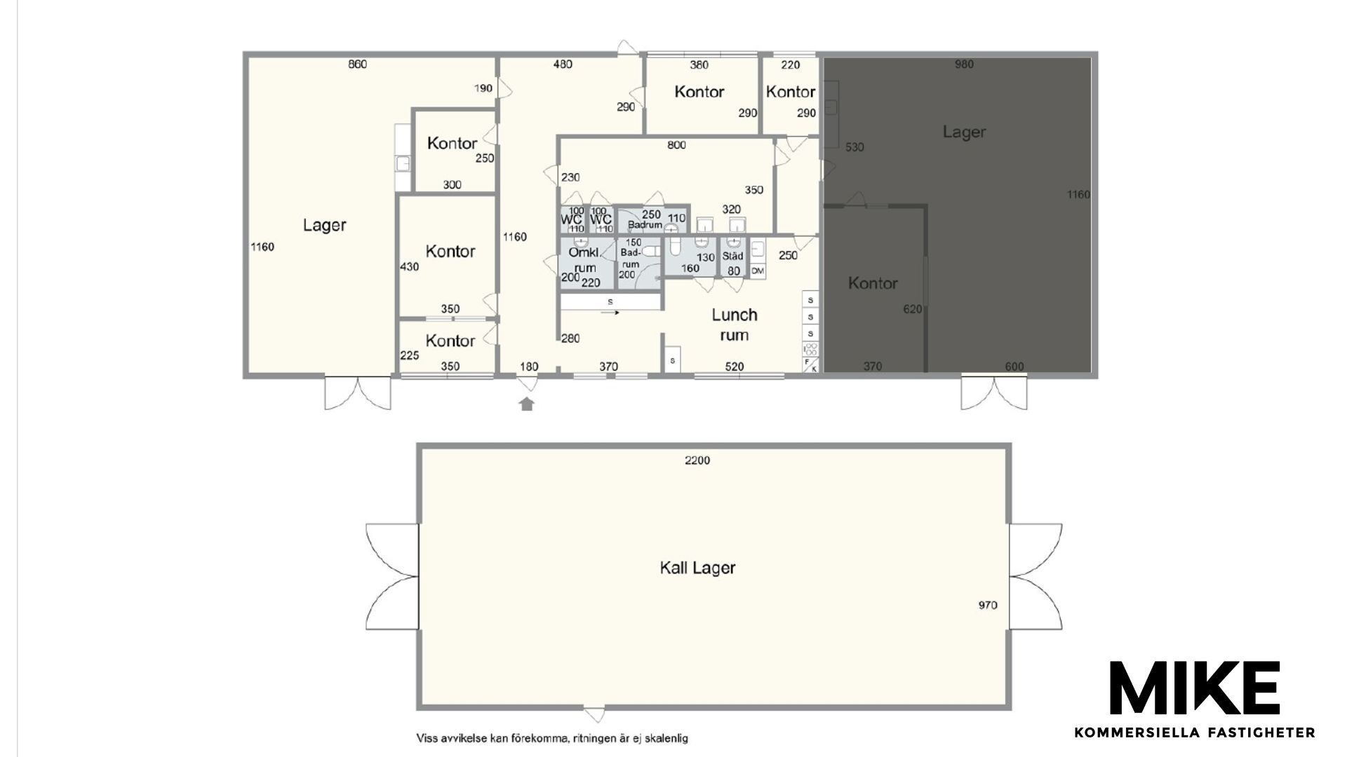
Industrifastighet med attraktivt läge i Varla/Hede industriområde i Kungsbacka. Här erbjuds en flexibel kombilokal med både kontor och lager om cirka 215 kvm, kompletterat med ett kallager om cirka 218 kvm.
Lokalen passar utmärkt för verksamheter som söker en praktisk lösning med närhet mellan administration och lagerhållning. Lagerytorna är lättillgängliga och nås via en port om cirka 3,20 meter i höjd och 2,95 meter i bredd, vilket underlättar smidig in- och utlastning.
I lokalen finns även omklädningsrum, vilket ger extra funktionalitet för verksamheter med personal på plats.
Kontorsdelen erbjuder en trivsam arbetsmiljö med goda möjligheter för administrativa arbetsuppgifter, möten och planering.
Fastigheten har generösa uppställningsytor samt gott om parkeringsmöjligheter i direkt anslutning, vilket underlättar för både personal och besökare.
Ett utmärkt tillfälle för företag som vill etablera sig i ett väletablerat industriområde med bra kommunikationer i Varla/Hede, Kungsbacka.
Kort fakta
- Adress:
- Magasinsgatan 8B, Kungsbacka
- Typ:
- Kontor, industri och lager
- Totalarea:
- 433 Kvm
- Lokal, minsta valbara area:
- 220 Kvm
- Lokal, största valbara area:
- 433 Kvm
Rådgivning som tar fastighetsaffärer från bra till bättre
MIKE Kommersiella Fastigheter erbjuder sina kunder kostnadsfri rådgivning inom fastighetstransaktioner och lokalförmedling.
Senaste nytt
MIKE Kommersiella Fastigheter har agerat uthyrningsrådgivare gällande en kontors- och lagerlokal till Oneco i Sisjöns Handelsområde. Fastighetsägare är Vätterleden Vfast. ”Vi på Vätterleden Vfast tackar MIKE för en proffsig och välskött...
Läs mer
MIKE Kommersiella Fastigheter har agerat rådgivare vid två separata off market-affärer avseende lättindustrifastigheter i Rollsbo Industriområde, Kungälv. Vi vill rikta ett stort tack till samtliga involverade för ett professionellt samarbete ...
Läs mer
MIKE Kommersiella Fastigheter har agerat rådgivare i en affär omfattande 11 friköpta kombilokaler i Arendal, i direkt anslutning till Göteborgs Hamn. 2023 agerade vi rådgivare åt den dåvarande ägaren vid försäljningen av projektfastigheten. Dä...
Läs mer