Flexibel lager- och kontorslokal nära Volvo och hamnen
Välkommen till en modern och välplanerad kombilokal i absolut toppskick – perfekt för dig som söker en flexibel arbetsmiljö med både lager- och kontorsdel i ett attraktivt industriområde.
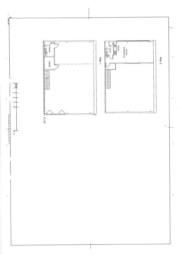
På markplan möts du av en rymlig lageryta om generösa 150 kvm. Här finns både höglager och låglager under entresolplanet, vilket skapar smarta och effektiva förvaringsmöjligheter. I anslutning till lagret finns även ett fräscht badrum samt ett praktiskt förråd som gör det enkelt att hålla ordning och struktur.
En trappa upp når du entresolplanet om totalt 46 kvm – en trivsam kontorsdel med plats för 2–4 arbetsplatser. Här finns dessutom ett stilrent pentry och ytterligare ett badrum, vilket skapar en bekväm och funktionell arbetsmiljö för dig och ditt team.
Lokalen präglas av en härlig industriell karaktär som ger en inspirerande känsla och en professionell atmosfär. Läget i Arendal är optimalt: endast 5 minuter från Volvo, 5 minuter från hamnen och med snabb och smidig anslutning ut på väg 158.
Detta är en lokal som måste upplevas på plats – tveka inte att höra av dig om du har frågor eller vill boka en visning!.
Kort fakta
- Adress:
- Kärrlyckegatan 31, Göteborg
- Typ:
- Kontor och lager
- Totalarea:
- 196 Kvm
Planlösning
Rådgivning som tar fastighetsaffärer från bra till bättre
MIKE Kommersiella Fastigheter erbjuder sina kunder kostnadsfri rådgivning inom fastighetstransaktioner och lokalförmedling.
Senaste nytt
MIKE Kommersiella Fastigheter söker medarbetare till uthyrningsverksamheten! Vi har stor efterfrågan på vår uthyrningstjänst vilket gör att du direkt kommer ha såväl en kund- som uppdragsbas att jobba med. Är du erfaren inom uthyrning av kommersi...
Läs mer
Vi är glada att välkomna Hugo Hellberg tillbaka till MIKE Kommersiella Fastigheter, nu i rollen som transaktionsrådgivare med start under oktober. Hugo har tidigare arbetat hos oss på uthyrningsavdelningen och har sedan han lämnade MIKE arbeta...
Läs mer
MIKE Kommersiella Fastigheter har haft förtroendet att agera transaktionsrådgivare vid avyttring av en bostadsfastighet på Hisingen i Göteborgs kommun. Vi på MIKE vill önska köparen lycka till och tacka säljaren för förtroendet i transaktionen...
Läs mer