Superfint kontor/showroom med utsikt över älven!
På Kämpegatan 3 finns nu möjligheten att flytta in i en fantastiskt fin lokal som lämpar sig väl för såväl kontor som showroom. Lokalen är belägen på entréplan, närmast älven, med gott ljusinsläpp.
Här trivs medarbetarna i en öppen planlösning och ett riktigt fint kök. Lokalen är även utrustad med ett fokus-/teamsrum, samtalsrum, mötesrum samt förråd/skrivarrum. Det är även möjligt att nyttja angränsande ljusgård för arbete och möten.
Det finns även möjlighet att hyra ett förråd på ca 40 kvm.
Huset genomgick en omfattande utveckling, renovering och ombyggnation 2020. Varje våningsplan har en entrédel som är öppen mot den inglasade ljusgården med utsikt mot Göta älv. Ljusgården och bottenplanet erbjuder ett rikt serviceutbud och i källaren finns även ett gemensamt omklädningsrum, låst cykelgarage samt parkeringsplatser.
Riktigt bra läge med närhet till Centralstationen och Nordstan.
Kontakta oss på MIKE för mer info!.
Kort fakta
- Adress:
- Kämpegatan 3, Göteborg
- Typ:
- Kontor
- Totalarea:
- 178 Kvm
Kämpegatan 3
Entré till lokalen från ljusgården
Lokalen sedd från ljusgården
Ljusgården utanför lokalen
Möjlighet för möten i ljusgården
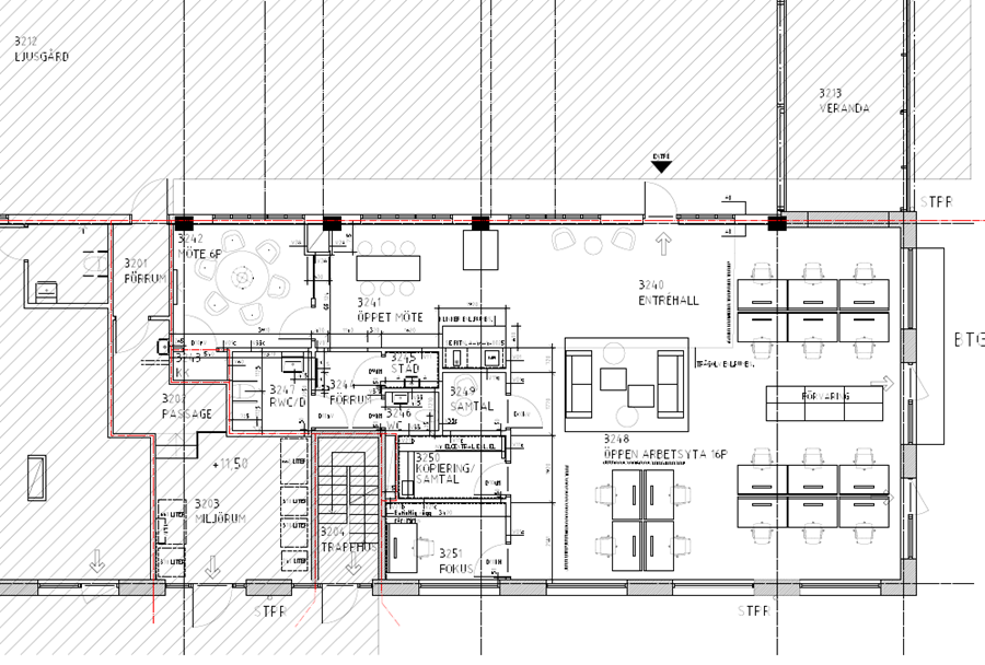
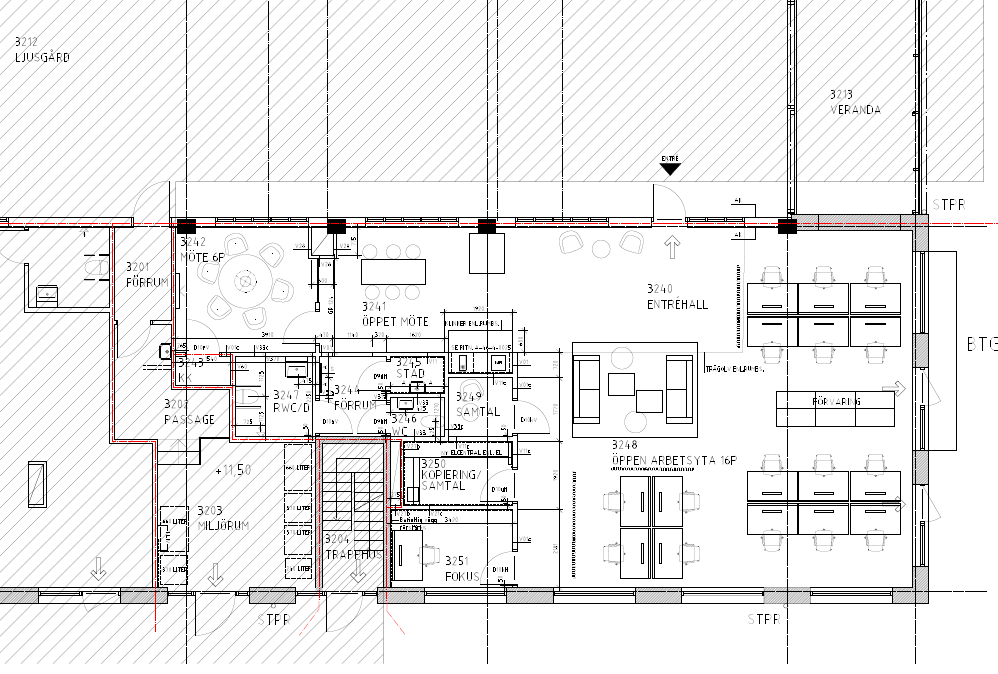
Ritning
Rådgivning som tar fastighetsaffärer från bra till bättre
MIKE Kommersiella Fastigheter erbjuder sina kunder kostnadsfri rådgivning inom fastighetstransaktioner och lokalförmedling.
Senaste nytt
MIKE Kommersiella Fastigheter har agerat uthyrningsrådgivare gällande en kontors- och lagerlokal till Oneco i Sisjöns Handelsområde. Fastighetsägare är Vätterleden Vfast. ”Vi på Vätterleden Vfast tackar MIKE för en proffsig och välskött...
Läs mer
MIKE Kommersiella Fastigheter har agerat rådgivare vid två separata off market-affärer avseende lättindustrifastigheter i Rollsbo Industriområde, Kungälv. Vi vill rikta ett stort tack till samtliga involverade för ett professionellt samarbete ...
Läs mer
MIKE Kommersiella Fastigheter har agerat rådgivare i en affär omfattande 11 friköpta kombilokaler i Arendal, i direkt anslutning till Göteborgs Hamn. 2023 agerade vi rådgivare åt den dåvarande ägaren vid försäljningen av projektfastigheten. Dä...
Läs mer