Fin verksamhetslokal i Stenkullen
På Färgvägen 8 i Stenkullens Industriområde finns möjlighet att hyra en kombilokal med totalyta om ca 235 kvm.
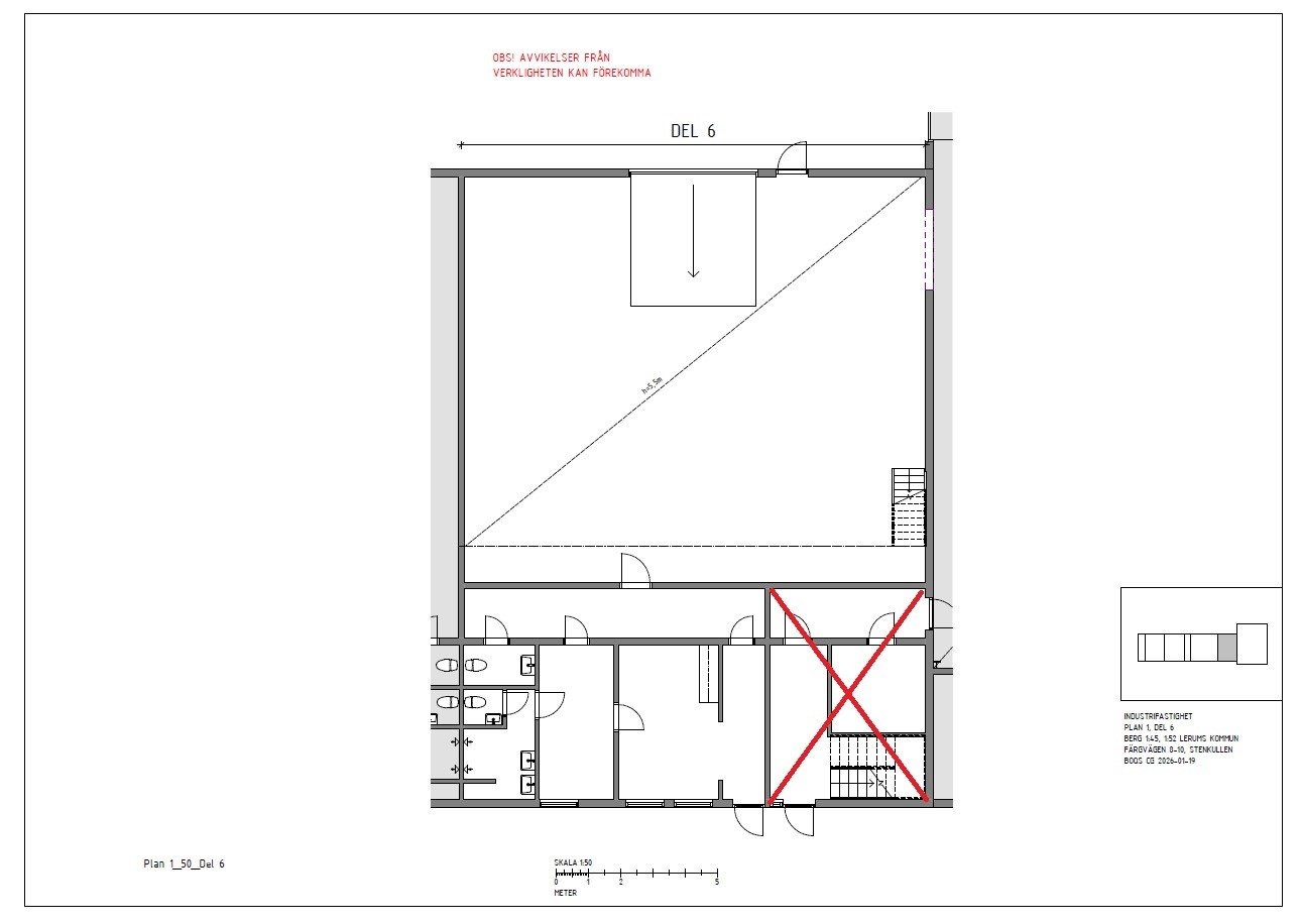
Lagerdelen utgör ca 181 kvm av totalytan och har en högsta takhöjd om ca 6 meter. Lagret nås via den rejäla porten alternativt från personaldelen på byggnadens baksida där parkeringsytor finns tillgängliga. Personaldelen är utrustad med omklädningsrum, dusch, wc och kontor.
Område
I Stenkullens industriområde finns både lager, handel och kontorsverksamhet med stora aktörer såsom Stihl, Colorama, Derome och Beijer Bygg. Lokalen ligger ca 5 minuter från Lerum, 20 minuter från Alingsås och ca 25 minuter från Göteborg.
Kort fakta
- Adress:
- Färgvägen 8, Stenkullen
- Typ:
- Kontor, industri och lager
- Totalarea:
- 235 Kvm
Bild från grannlokal
Bild från grannlokal
Färgvägen 8
Färgvägen 8
Ritning
Färgvägen 8
Rådgivning som tar fastighetsaffärer från bra till bättre
MIKE Kommersiella Fastigheter erbjuder sina kunder kostnadsfri rådgivning inom fastighetstransaktioner och lokalförmedling.
Senaste nytt
MIKE Kommersiella Fastigheter söker medarbetare till uthyrningsverksamheten! Vi har stor efterfrågan på vår uthyrningstjänst vilket gör att du direkt kommer ha såväl en kund- som uppdragsbas att jobba med. Är du erfaren inom uthyrning av kommersi...
Läs mer
Vi är glada att välkomna Hugo Hellberg tillbaka till MIKE Kommersiella Fastigheter, nu i rollen som transaktionsrådgivare med start under oktober. Hugo har tidigare arbetat hos oss på uthyrningsavdelningen och har sedan han lämnade MIKE arbeta...
Läs mer
MIKE Kommersiella Fastigheter har haft förtroendet att agera transaktionsrådgivare vid avyttring av en bostadsfastighet på Hisingen i Göteborgs kommun. Vi på MIKE vill önska köparen lycka till och tacka säljaren för förtroendet i transaktionen...
Läs mer