Karaktärsfullt kontor i Vasastaden
Välkommen till Erik Dahlbergsgatan 9 och detta fantastiska kontor om ca 303 kvm.
Här slås man av takhöjden och det exceptionella läget mitt i Vasastaden.
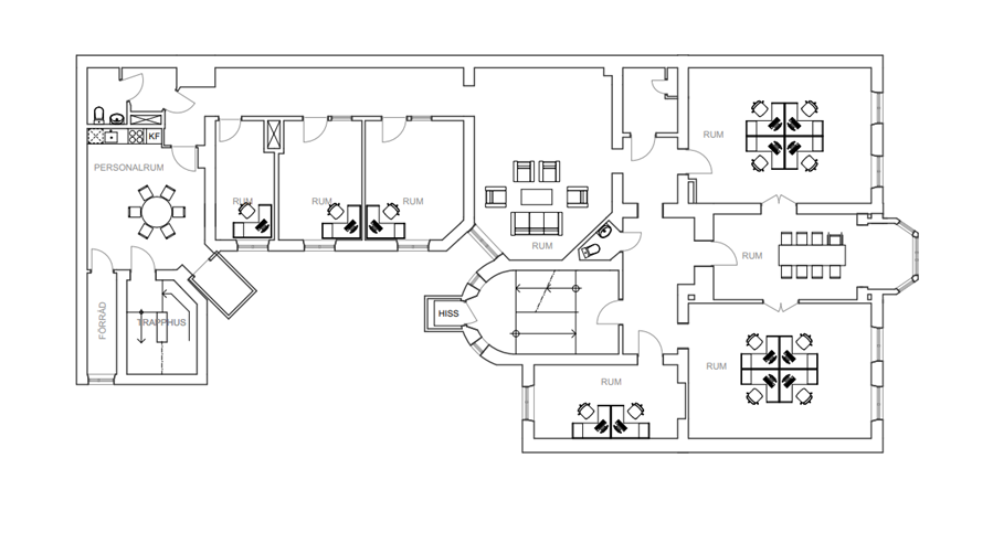
Här finns flertalet rum som kan användas som såväl kontorsrum som mötesrum. Våningen är klassiskt uppdelad i en mer extern och en mer intern del.
Lokalen är under renovering och ny hyresgäst kan påverka material och utformning till viss del. Bilagd ritning är ett förslag och kan till vissa delar påverkas av ny hyresgäst. Det som redan nu utförs är bla:
* Målning av väggar och listverk
* Nytt undertak
* Nytt parkettgolv i delar av lokalen
* Ny matta i delar av lokalen
* Nytt pentry med vitvaror
Kontakta oss på MIKE för mer info.
Kort fakta
- Adress:
- Erik Dahlbergsgatan 9, Göteborg
- Typ:
- Kontor
- Totalarea:
- 303 Kvm
Förslag på ritning
Exempelbild från grannlokal
Exempelbild från grannlokal
Rådgivning som tar fastighetsaffärer från bra till bättre
MIKE Kommersiella Fastigheter erbjuder sina kunder kostnadsfri rådgivning inom fastighetstransaktioner och lokalförmedling.
Senaste nytt
MIKE Kommersiella Fastigheter söker medarbetare till uthyrningsverksamheten! Vi har stor efterfrågan på vår uthyrningstjänst vilket gör att du direkt kommer ha såväl en kund- som uppdragsbas att jobba med. Är du erfaren inom uthyrning av kommersi...
Läs mer
Vi är glada att välkomna Hugo Hellberg tillbaka till MIKE Kommersiella Fastigheter, nu i rollen som transaktionsrådgivare med start under oktober. Hugo har tidigare arbetat hos oss på uthyrningsavdelningen och har sedan han lämnade MIKE arbeta...
Läs mer
MIKE Kommersiella Fastigheter har haft förtroendet att agera transaktionsrådgivare vid avyttring av en bostadsfastighet på Hisingen i Göteborgs kommun. Vi på MIKE vill önska köparen lycka till och tacka säljaren för förtroendet i transaktionen...
Läs mer