Ljus och modern företagslokal – perfekt kombination av lager och kontor
Kombilokal med lager i markplan och modernt kontor en trappa upp – totalt 463 kvm
Nu finns möjlighet att hyra en ljus och flexibel kombilokal med stort lager i markplan och modernt kontor en trappa upp. Lokalen håller mycket bra standard och lämpar sig utmärkt för verksamheter många olika verksamheter.
Fakta
Total yta: ca 463 kvm
Lager: ca 325 kvm
Kontor: ca 138 kvm (en trappa upp)
Standard: Modern och välskött
Tillträde: Enligt överenskommelse
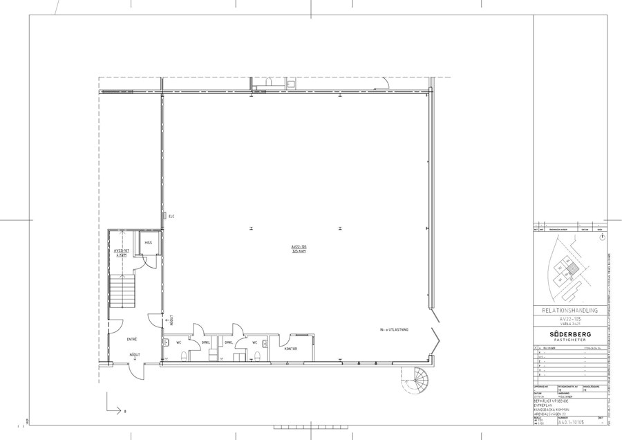
Lagerplan (bottenvåning)
Rymligt lager med bra takhöjd om ca 3 meter och port i markplan 3*3 meter med dörr
Omklädningsrum med WC
Möjlighet att inreda mindre kontor, showroom eller personalutrymme i lagret
Lättillgänglig yta för in- och utlastning
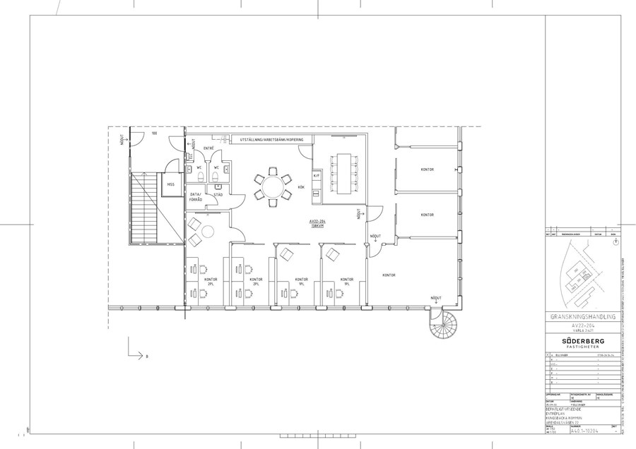
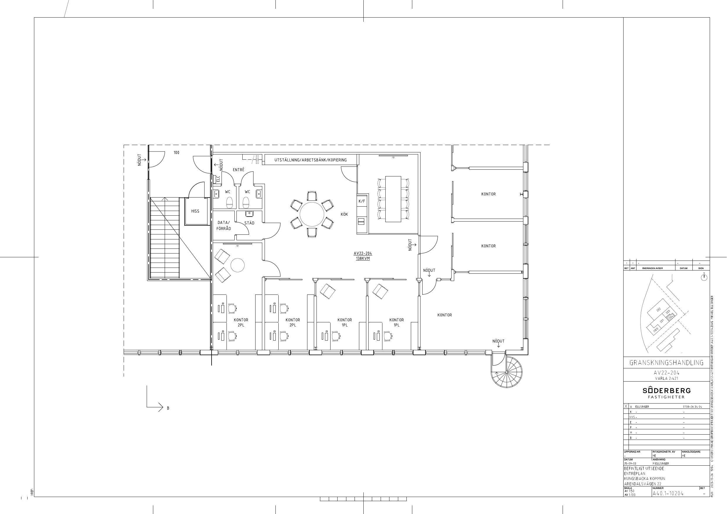
Kontorsplan (en trappa upp)
Moderna kontorsytor om ca 138 kvm med genomgående ljus och öppen planlösning
Möjlighet att skapa konferensrum eller fler kontorsrum
Pentry/kök och WC
Stilren interiör med hög trivselfaktor
Övrigt
Parkeringsmöjligheter i direkt anslutning till fastigheten
Gavelläge med bra ljusinsläpp
Lämplig för företag som vill kombinera lager, kontor och kundmottagning
Inflyttningsklar lokal i mycket bra skick.
Kort fakta
- Adress:
- Arendalsvägen 22, Kungsbacka
- Typ:
- Kontor och lager
- Totalarea:
- 463 Kvm
Planritning lager 335 kvm
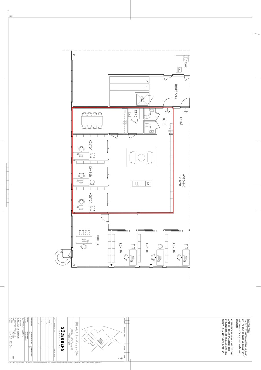
Planritning
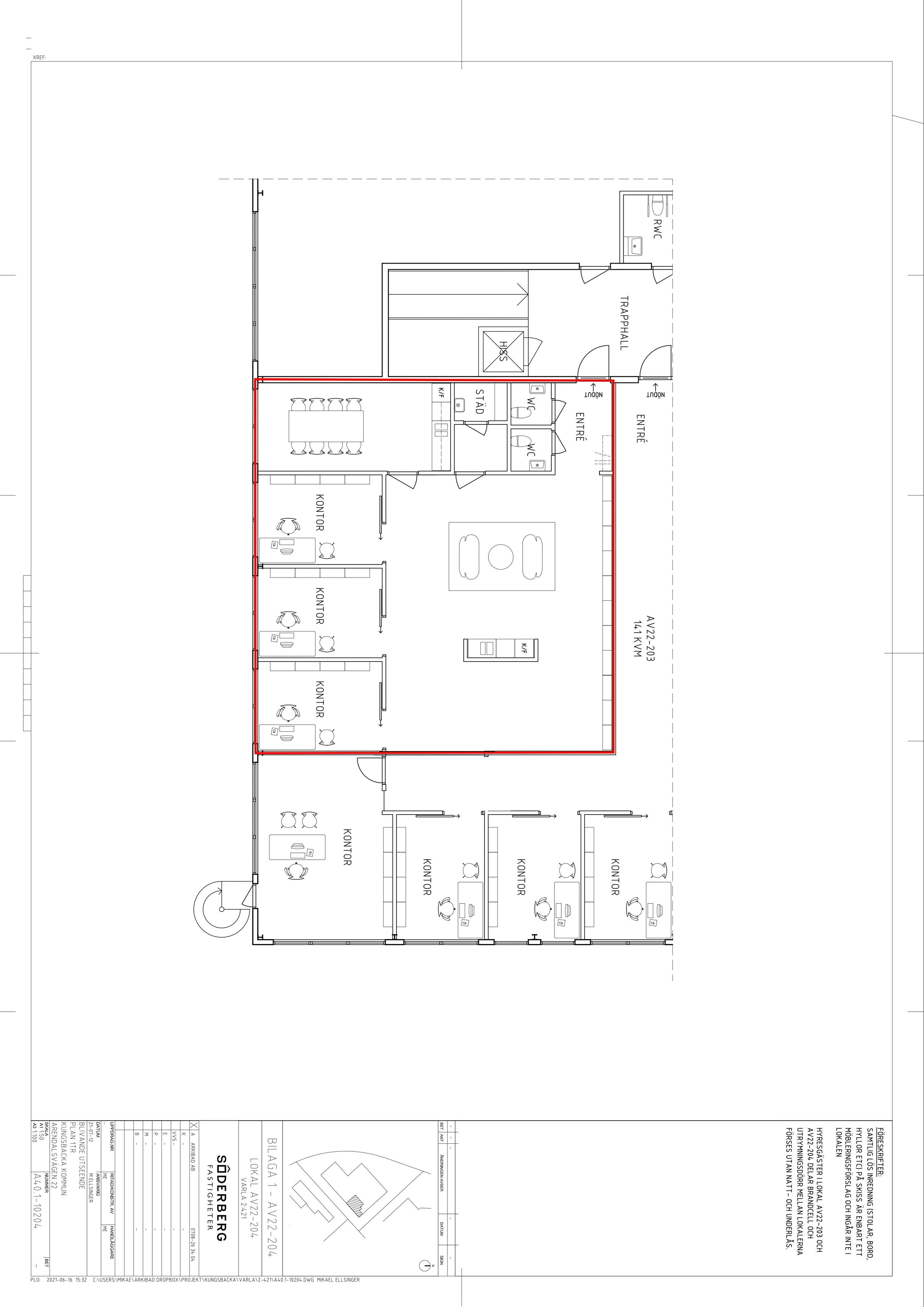
Möjlig planlösning med fler arbetsplatser
Rådgivning som tar fastighetsaffärer från bra till bättre
MIKE Kommersiella Fastigheter erbjuder sina kunder kostnadsfri rådgivning inom fastighetstransaktioner och lokalförmedling.
Senaste nytt
MIKE Kommersiella Fastigheter söker medarbetare till uthyrningsverksamheten! Vi har stor efterfrågan på vår uthyrningstjänst vilket gör att du direkt kommer ha såväl en kund- som uppdragsbas att jobba med. Är du erfaren inom uthyrning av kommersi...
Läs mer
Vi är glada att välkomna Hugo Hellberg tillbaka till MIKE Kommersiella Fastigheter, nu i rollen som transaktionsrådgivare med start under oktober. Hugo har tidigare arbetat hos oss på uthyrningsavdelningen och har sedan han lämnade MIKE arbeta...
Läs mer
MIKE Kommersiella Fastigheter har haft förtroendet att agera transaktionsrådgivare vid avyttring av en bostadsfastighet på Hisingen i Göteborgs kommun. Vi på MIKE vill önska köparen lycka till och tacka säljaren för förtroendet i transaktionen...
Läs mer