Hyr representativ industrifastighet med starkt kommunikationsläge och flexibel användning
Modern och välunderhållen fastighet med ett mycket attraktivt läge i Lindome finns nu tillgänglig att hyra i sin helhet alternativt en av byggnaderna. Placerad i ett etablerat verksamhetsområde med närhet till både handel och industri. Området präglas av god tillgänglighet och fortsatt utvecklingspotential, vilket gör det väl lämpat för en rad olika verksamheter.
Fastigheten har genomgått omfattande renoveringar i flera etapper och erbjuder idag lokaler med genomgående hög standard samt en flexibel utformning för kontor, produktion och lager.
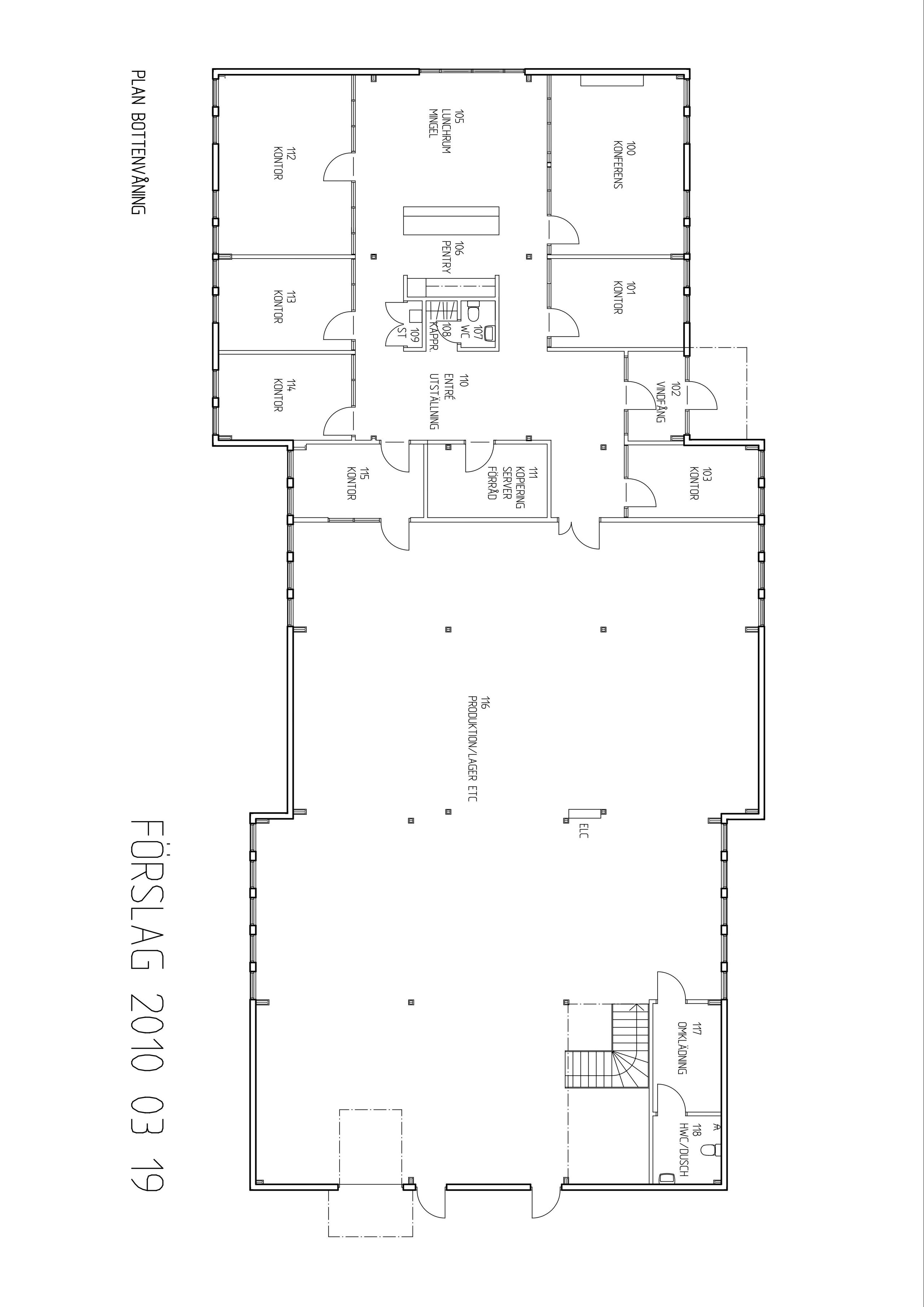
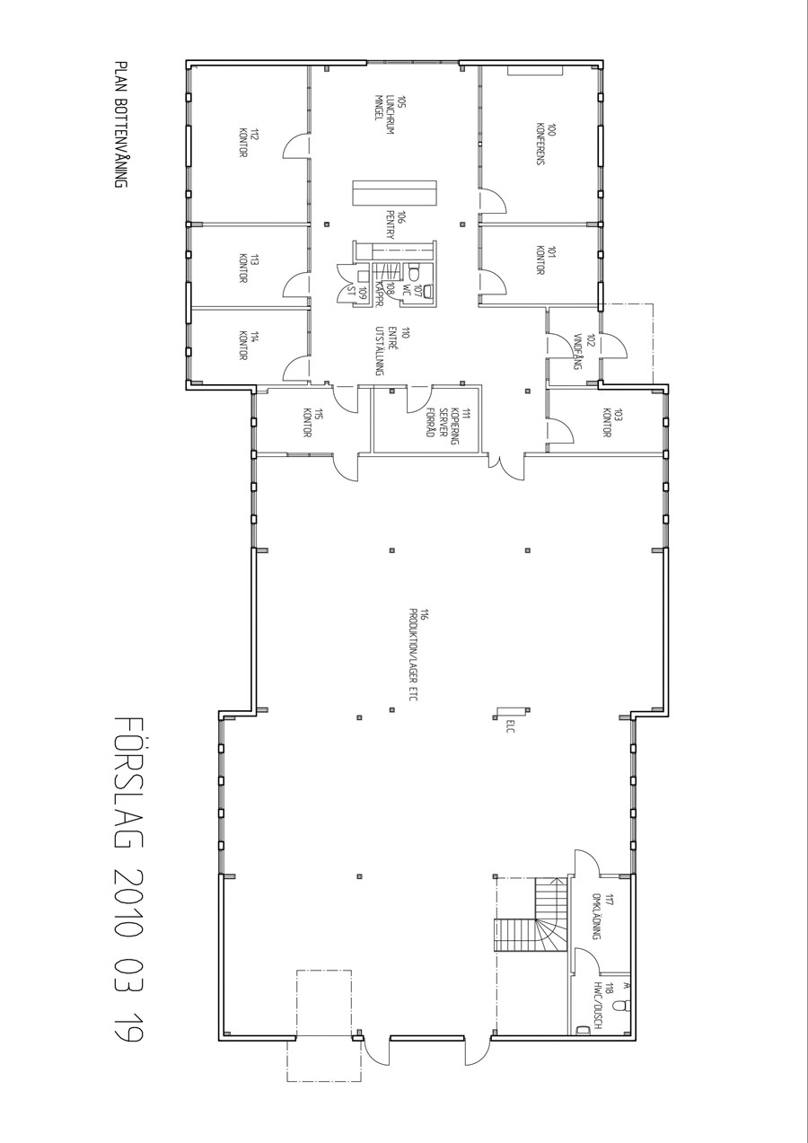
Lokalerna är disponerade på ett effektivt sätt med en naturlig kombination av kontorsytor och industriella utrymmen. I entréplan finns ljusa och moderna kontorsmiljöer med både enskilda arbetsrum och gemensamma ytor såsom lunchrum och pausutrymmen. Här finns även wc, förråd samt smidiga förbindelser vidare till produktions- och lagerytor.
De industriella delarna är uppdelade i flera sektioner, vilket skapar god flexibilitet för olika typer av verksamheter. Här finns även garage-/lagerutrymmen, verkstadsytor samt genomtänkta logistikflöden mellan olika delar av fastigheten.
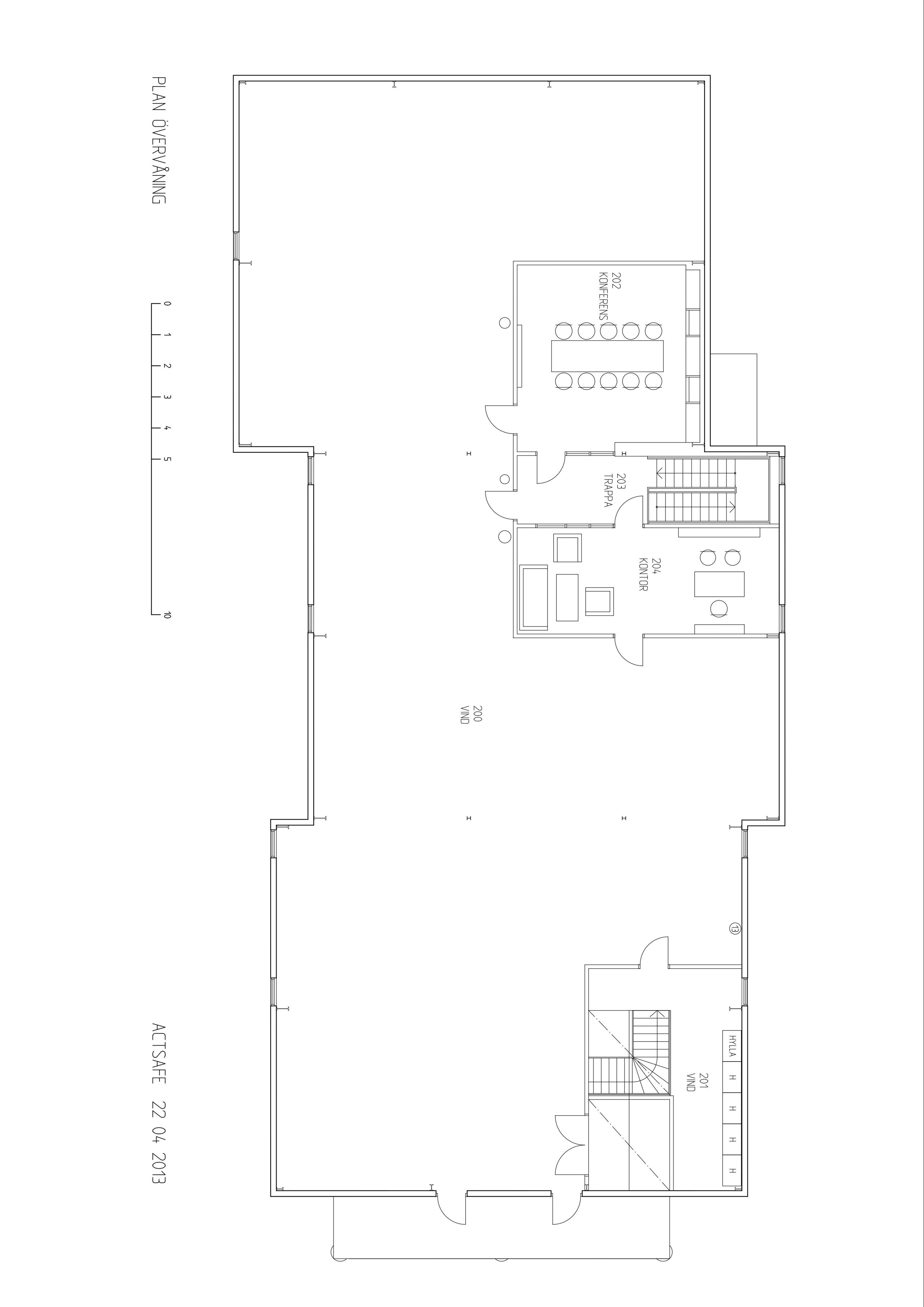
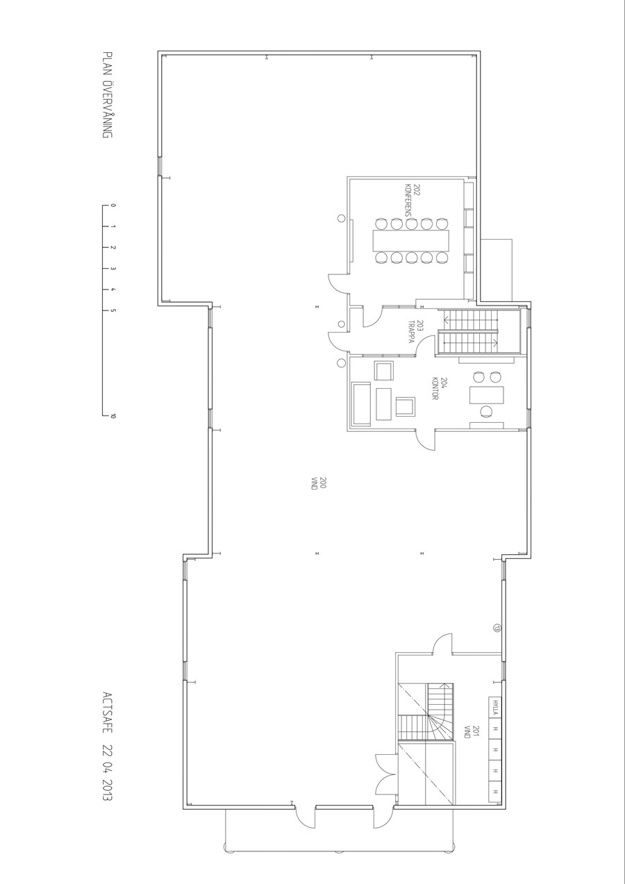
På de övre planen finns ytterligare utrymmen för kontor, konferens samt produktion eller lager. Ljusa materialval och välplanerade ytor bidrar till en trivsam arbetsmiljö. Här finns även omklädningsrum med dusch och wc samt tillgång till bastu, vilket ger goda personalutrymmen.
Läget erbjuder mycket goda kommunikationsmöjligheter med Lindome station i direkt anslutning till fastigheten, där både tåg och buss trafikerar med täta avgångar mot Göteborg och Kungsbacka. Närheten till E6 ger snabb access till det regionala vägnätet, vilket underlättar både transporter och pendling. Med bil nås Göteborg på cirka 15 minuter, Mölndal på cirka 10 minuter och Kungsbacka på cirka 10 minuter.
I närområdet finns även ett bra utbud av service såsom matbutiker, restauranger och övriga faciliteter som underlättar vardagen för verksamheten.
Sammanfattningsvis är detta en representativ och flexibel fastighet med stora möjligheter, oavsett om den ska användas för egen verksamhet eller som en långsiktig investering.
Kort fakta
- Adress:
- Sagbäcksvägen 13, Lindome
- Typ:
- Industri, kontor, lager och övrigt
- Totalarea:
- 1 460 Kvm
- Lokal, minsta valbara area:
- 560 Kvm
- Lokal, största valbara area:
- 1 100 Kvm
Planritnign vån 1 vita huset
Planritning vån 2 vita huset
Rådgivning som tar fastighetsaffärer från bra till bättre
MIKE Kommersiella Fastigheter erbjuder sina kunder kostnadsfri rådgivning inom fastighetstransaktioner och lokalförmedling.
Senaste nytt
MIKE Kommersiella Fastigheter har agerat uthyrningsrådgivare gällande en kontors- och lagerlokal till Oneco i Sisjöns Handelsområde. Fastighetsägare är Vätterleden Vfast. ”Vi på Vätterleden Vfast tackar MIKE för en proffsig och välskött...
Läs mer
MIKE Kommersiella Fastigheter har agerat rådgivare vid två separata off market-affärer avseende lättindustrifastigheter i Rollsbo Industriområde, Kungälv. Vi vill rikta ett stort tack till samtliga involverade för ett professionellt samarbete ...
Läs mer
MIKE Kommersiella Fastigheter har agerat rådgivare i en affär omfattande 11 friköpta kombilokaler i Arendal, i direkt anslutning till Göteborgs Hamn. 2023 agerade vi rådgivare åt den dåvarande ägaren vid försäljningen av projektfastigheten. Dä...
Läs mer